...hier habe ich Ihnen einige Beispiele von bereits bestehenden und von mir geplanten Ofen-Anlagen zusammengestellt...
Vorher Nachher

z.B. in Regis Breitingen: eine schöne Eck-Variante mit einem kleinen Regal an der rechten Seite zur Auflockerung der gesamten Anlage und
gleichzeitig als Rauchrohr-Durchführung im Schürzenbereich; Die Verkleidung ist bei dieser Variante in einem Jura Marmor bossiert
ausgeführt, die Simse sind auf der Oberfläche poliert und an der Vorderkante ebenfalls bossiert (behauen). Als Heiztechnik wurde hier ein
9,5 kW Heizeinsatz verwendet, bei dem man durch die prismatische Scheibe eine allseitige Einsicht zum Kaminfeuer hat.
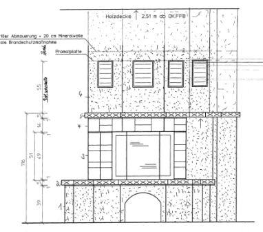
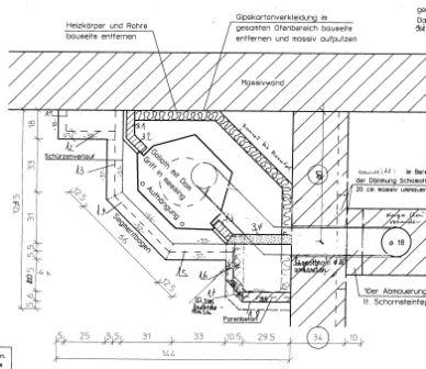
In den beiden unteren Bildern sehen Sie die entsprechenden Planzeichnungen...
Plan-Zeichnung Grundriss Plan-Zeichnung-Ansicht
